Montessori In Town
Montessori In Town’s Upper Elementary building marks our third adaptive reuse collaboration since the school established its campus at the intersection of Moreland and Arkwright, just north of I-20.
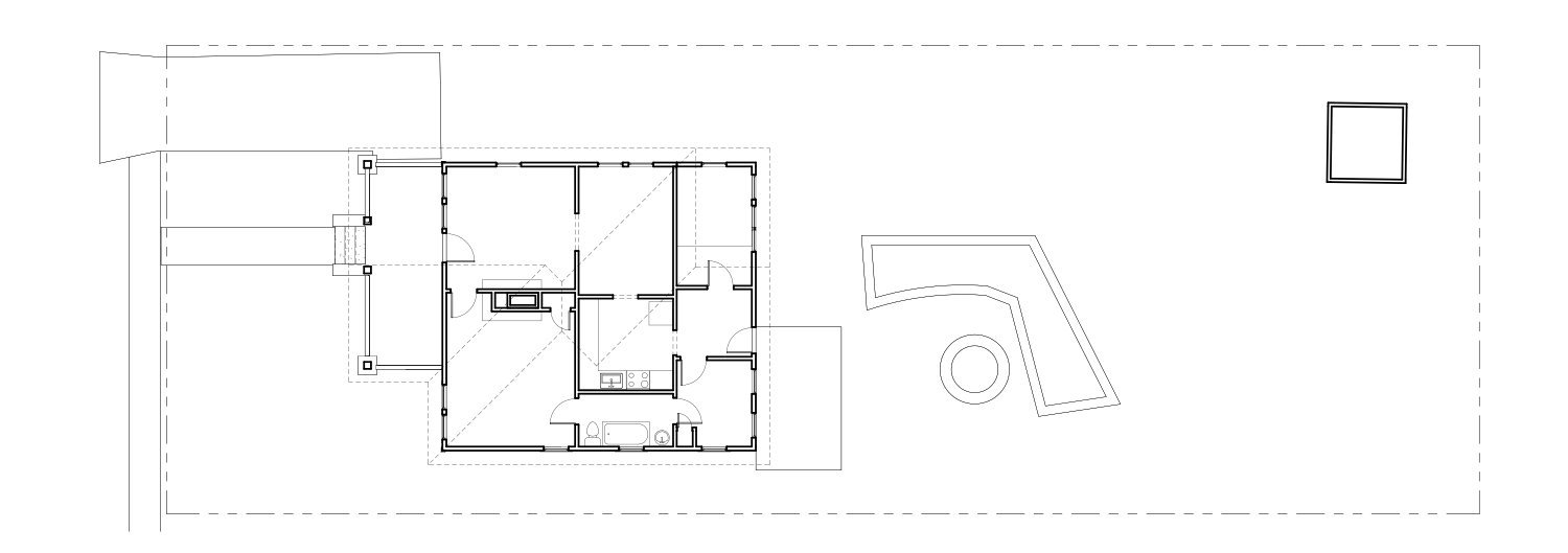
Each project began as a single-family residence, thoughtfully transformed to support the Montessori educational philosophy. This latest conversion represents our most ambitious undertaking, more than doubling the original home's footprint while preserving the residential character that defines the streetscape.
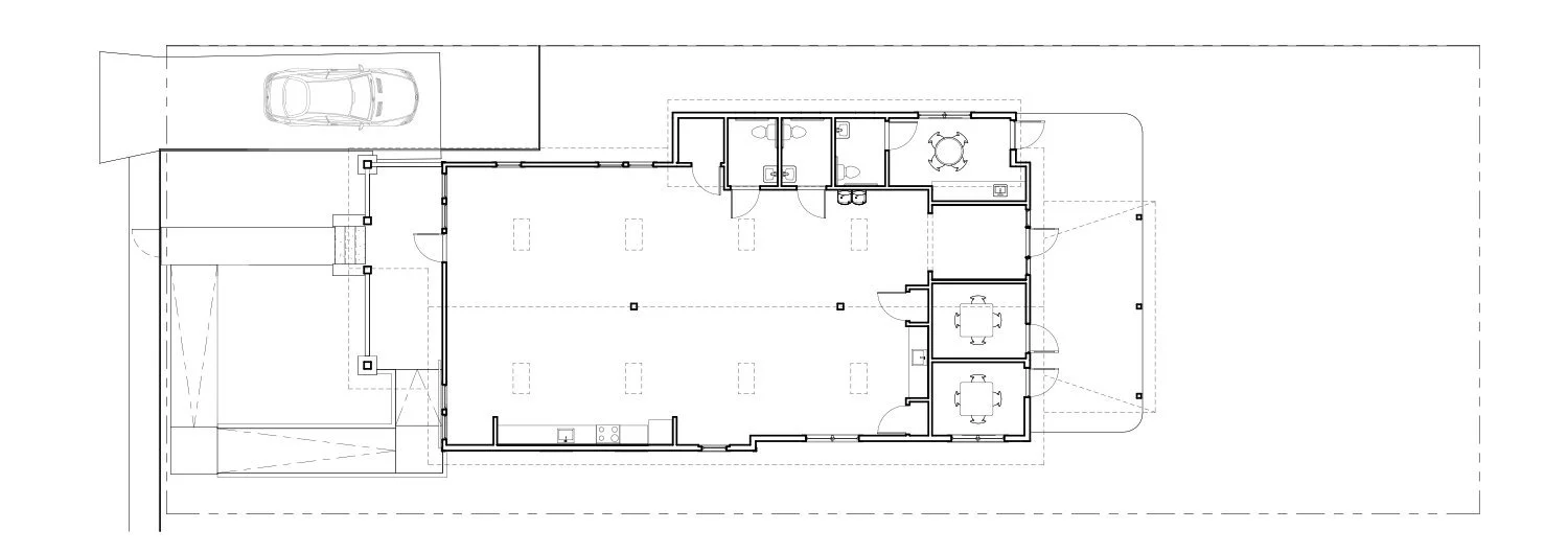
The interior was completely reimagined as a single, light-filled classroom crowned by expansive skylights. With the properties now contiguous, the outdoor spaces flow seamlessly into one another, creating an integrated campus environment that connects all four buildings through shared grounds
Contractor: Care For Your Castle, Inc.
Photography: Sarah Alsati
UPPER ELEMENTARY FLOOR PLAN
PREVIOUS HOUSE PLAN

